NEWS ニュース
OTHER
2026-01-27
チャレンジショップ出店者募集
目次
【チャレンジショップ出店者募集】
現在、SEE SEA PARKでは新たにチャレンジショップにご出店いただける方を募集しています!
チャレンジショップはおおい町で新たに雑貨やアパレル等の物販店、定食屋やお菓子屋さん等の飲食店を始められる方を対象とした区画で、賃料を抑え、出店期間は概ね3年以内を目安とします。
また退去後は町内での開業に向けて、卒業後の店舗探しや最大500万円の創業補助金など手厚い支援を提供します!
※町の事業編成により内容変更となる可能性があります。
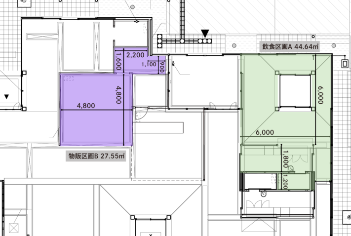
今回の募集は飲食店舗向1区画(飲食区画A)と物販店舗向1区画(物販区画B)です。

【物販区画B 27.55平方メートル】(18,000円/月額)
スケートボードショップ営業時の写真_1(備品は入居時この限りではありません)

スケートボードショップ営業時の写真_2(備品は入居時この限りではありません)

【飲食区画A 44.64平方メートル】(20,000円/月額)
パン屋営業時の写真_1 (備品は入居時この限りではありません)
パン屋営業時の写真_2(備品は入居時この限りではありません)

【出店に関する詳細】
〈出店までのスケジュール〉

〈申込方法〉
以下の出店者募集要項をご確認いただき、「出店申請書」「事業計画書」を記入の上、
リライトおおい株式会社までお送りください。(郵送/メールは問いません,Wordに直接記入可)
※リライトおおい株式会社
〈住所〉〒919-2111 福井県大飯郡おおい町本郷153-21-1
〈メールアドレス〉info@re-lightohi.jp
〈電話番号〉0770-59-1228
〈申込締切〉
・随時(他の入居者が決定次第、申込を締め切ります)
●出店についての詳細な書類
出店募集要項
●出店申請時に必要な書類
出店申請書事業計画書
皆さんのチャレンジをお待ちしています。